
GKYWG-60XV罐旁顯示儀又叫罐旁顯示器,是由河北光科測控設備有限公司研制開發的又一款多功能防爆顯示儀表。其利用現代化的傳感技術將罐內信息轉化為電信號進行檢測并運算得出最終結果,這些檢測數據通過RS485、4~20mA等通訊接口輸出到顯示屏,輕松實現罐下顯示,免去人工爬罐讀取數據的麻煩。方便安裝在現場裝置區高溫有毒、易燃易爆的工業現場環境,主要用于石油化工、電力、醫藥、消防等行業。
防爆殼體設計可以用于各種工業現場(已經通過國家防爆認證)
安全等級為SIL3,可以用在各種環境
高亮液晶帶背光顯示屏方便在晚上觀看數據
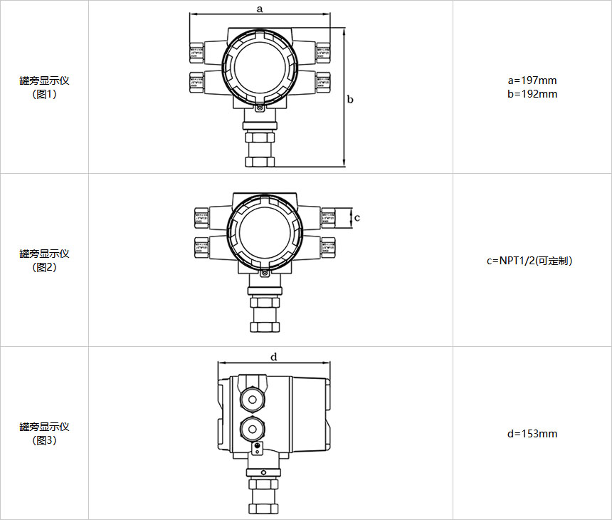
安裝簡單方便,輕松實現罐下顯示
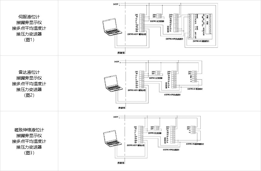
同時輸入4~20mA和RS485信號,輸出RS485 MODBUS信號
可配套雷達物位計、伺服液位計、磁致伸縮液位計等液位儀表實現液位罐下顯示
可選配多點平均溫度計、壓力變送器等溫度、壓力儀表實現溫度、壓力值的罐下顯示
同步實現液位/界位、溫度、密度、壓力的輪循顯示
磁致伸縮液位計配套罐旁顯示儀的修正補償功能,保證了測量和顯示的精度
伺服液位計配套罐旁顯示儀的密度測量功能,可同步測量并顯示介質密度
RS485通訊可自動校準所有參數
實用范圍:伺服液位計、磁致伸縮液位計、雷達液位計、多點平均溫度計、一體化溫度變送器、壓力變送器等
1、鋼鐵行業:如煤焦化(備煤倉、焦倉、煤氣柜、煤焦油及粗苯罐)、燒結廠(燒結料混合倉、冷返礦、球團倉)
2、煉鐵廠(煉鐵中間倉、高爐料位等)等料倉的料位檢測并輸出到罐下顯示。
3、煤炭行業:原煤倉、粉煤倉、煤矸石倉儲料位、洗煤池等料倉的料位檢測并輸出到罐下顯示。
4、水泥行業:包括原料庫、生料均化庫、熟料庫、成品庫、粉煤灰倉、原煤倉、石膏庫、水泥渣倉。
5、電力行業物料過程存儲物位檢測,如火電廠的原煤倉、粉煤倉及干灰庫中料位的檢測并輸出到罐下顯示。
6、有色冶金行業、制鋁、制鎳、制鋅、制鈦行業:(制鋁)礦漿槽、溶出槽、閃蒸釜、溶出后槽、絮凝槽、沉降槽、分解槽、氧化鋁粉倉。
7、石油化工行業:如石油化工、煤焦化工、電石化工等料倉的料位檢測并輸出到罐下顯示。
8、食品醫藥行業、環保及水處理行業、半導體行業等。



安裝要求: 一般采用標準U型支架或螺紋安裝于罐底,為方便調試,儀表建議安裝在有平臺方便查看的地方。



上一篇:GKYWG-52激光物位計
下一篇:GKYWG-57磁性液位計
冀公網安備 13040202000874號 冀ICP備18023072號-3
